Klapy przeciwpożarowe

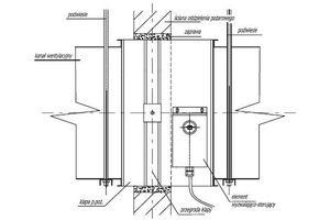
Klapy przeciwpożarowe stanowią element montowany w instalacjach wentylacji ogólnej. Podczas eksploatacji w normalnych warunkach pozostają one otwarte, zamykając się jedynie w momencie zaistnienia niebezpieczeństwa. Mają one na celu odcięcie stref objętych pożarem od pozostałych lokali w budynku. W konsekwencji wpływają na ograniczenie rozprzestrzeniania się ognia, dymu i temperatury, ułatwiając akcję gaśniczo-ratunkową oraz minimalizując ewentualne straty. Charakteryzują się zmienną odpornością ogniową, dobieraną pod kątem sposobu i miejsca montażu. Mogą one przybierać formę okrągłą, prostokątną lub kwadratową oraz zróżnicowane wymiary, które ułatwiają ich dopasowanie do istniejącej instalacji. Przeciwpożarowe klapy odcinające są montowane w ścianach, stropach, a także poza przegrodami budowlanymi. Mogą posiadać wyzwalacz termiczny topikowy lub ampułkowy, który automatycznie uruchamia zamykający je napęd elektryczny w momencie, gdy temperatura przekroczy 70º Celsjusza lub inną, wybraną wartość. W sprzedaży dostępne są również modele z mechanizmem spustowym elektromagnetycznym. Aby zapewnić wysoką użyteczność klap, możliwe jest podłączenie ich do centrali przeciwpożarowej, czujek dymu lub termostatów.

Firmy Klapy przeciwpożarowe

Producenci:

Dystrybutorzy:

Instalatorzy:

Serwis:

Projektanci:

Hurtownie:

Oferty Klapy przeciwpożarowe

Artykuły Klapy przeciwpożarowe

Klapy pożarowe w przegrodzie budowlanej czy poza
Klapy pożarowe w przegrodzie budowlanej czy poza

Czy zalecenia odnośnie montażu przeciwpożarowych klap odcinających ...

Wąskie klapy przeciwpożarowe
Wąskie klapy przeciwpożarowe

Artykuł przedstawia możliwości, jakie stwarzają klapy przeciwpożaro...

W celu poprawienia jakości naszych usług korzystamy z plików cookies. Zgodę możesz udzielić poprzez zamknięcie tego komunikatu. Jeśli nie wyrażasz zgody na przechowywanie na Twoim urządzeniu końcowym plików cookies konieczne jest dokonanie zmian w ustawieniach Twojej przeglądarki. Więcej informacji na temat plików cookies i ochrony danych osobowych znajdziesz w Polityce prywatności.